中山华立凯旋新城售楼处营销中心24小时电话
扫描到手机,新闻随时看
扫一扫,用手机看文章
更加方便分享给朋友
华立凯旋新城
售楼处楼盘详情介绍:包含售楼处电话:400-666-0501、地址、户型图、小区图片、区位优势、交通、周边商业配套等楼盘详细资料;
更详细房源信息和最新折扣价格,请拨打售楼处电话400-666-0501,一对一专属置业顾问会为您详细介绍楼盘。
欢迎来电咨询楼盘、看房请提前预约,电话预约看房享受专属内部优惠折上折,享有惊喜家电赠送
4006660501
4006660501
4006660501
4006660501
4006660501
华立凯旋新城售楼处电话:400-666-0501【营销中心】欢迎您
更多项目优惠邱经理18650383152微信:qiulaoquan
售楼处直销,不会收取任何费用,请提前一小时预约看房,预约享额外售楼处专属内部98折团购优惠

项目名称:华立凯旋新城
物业管理:华立物业服务公司
总占地面积:约156398.4㎡(约240亩)
总建筑规模:约643601.97㎡
交楼标准:毛坯
总户数:3719户
容积率:3.0
绿化率:38%
建筑密度:30%
车位:4358个
户型:约73-125㎡二至三房
使用年限:70年产权商业住宅
物业公司:广州华立物业管理有限公司中山分公司
物业管理费:住宅3元/㎡·月
项目位置:中山市黄圃镇新丰北路83号(海蚀遗址风景区旁)

华立凯旋新城配套
全龄段学府,菁英教育资源汇聚——项目自带约5600㎡公立幼儿园;约2100㎡小区文化中心;镇一幼儿园、培红小学、中山市二中,家门口的教育,筑梦未来。
甲级医疗,贴身护航自带公立社区诊所,约1100㎡社区健康服务中心,足不出户,解决日常医疗问题;距离黄圃人民医院仅约2.3公里,为家人健康提供24小时保障
站式服务,社区配套齐全约2700㎡社区活动中心(含阅览室);约3000㎡社区服务中心
尖峰领地 赏鉴生态人居哲学项目邻近6500亩三大公园:黄圃公园、尖峰山公园、海蚀遗址风景区;

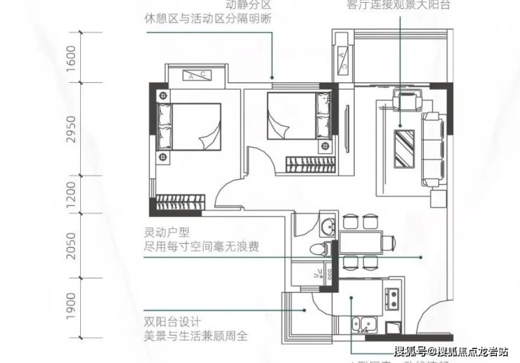
华立凯旋新城户型图
A户型:约73㎡ 两房两厅一卫

B户型:约110㎡ 三房两厅两卫

C户型:约99㎡ 三房两厅一卫

华立凯旋新城售楼处电话:400-666-0501【营销中心】欢迎您
更多项目优惠邱经理18650383152微信:qiulaoquan
售楼处直销,不会收取任何费用,请提前一小时预约看房,预约享额外售楼处专属内部98折团购优惠
声明:本文由入驻焦点开放平台的作者撰写,除焦点官方账号外,观点仅代表作者本人,不代表焦点立场。
