福州海月江南2025最新消息:售楼处电话—详情—咨询热线—实时动态-最新价格-户型图

龙岩楼市发布 2025-09-21 16:22:00
用手机看
扫描到手机,新闻随时看

扫一扫,用手机看文章
更加方便分享给朋友

福州海月江南售楼处电话:0591-3817-3457【营销中心】欢迎您 更多项目优惠邱经理18650383152微信:qiulaoquan 售楼处直销,不会收取任何费用,请提前一小时预约看房,预约享额外售楼处专属内部团购优惠

海月江南

售楼处详情介绍:售楼处电话:0591-3817-3457【24小时】地址、户型图、小区图片、区位优势、交通、周边商业配套等楼盘详细资料;

更详细房源信息和最新折扣价格,请拨打售楼处电话:0591-3817-3457一对一专属置业顾问会为您详细介绍楼盘。

欢迎来电咨询楼盘、看房请提前预约,电话预约看房享受专属内部优惠折上折,享有惊喜家电赠送

福州海月江南售楼处电话:0591-3817-3457【营销中心】欢迎您

更多项目优惠邱经理18650383152微信:qiulaoquan

售楼处直销,不会收取任何费用,请提前一小时预约看房,预约享额外售楼处专属内部团购优惠

日前,仓山区江南CBD板块百亩新盘曝光!该项目由融信、鑫鹏凯佳、中设天俊三家房企联手打造,案名定为——海月江南,打造海月系新作。

单价 30400元/平米

交房时间 2024-06-01

咨询电话 400-109-8809

楼盘地址 仓山区江边洲路南侧,雁头路北侧

装修状况 毛坯 建筑形式 高层 规划面积 97760 平米 建筑面积 83181 平米

容 积 率 1.4 绿 化 率 24% 房屋产权 住宅70年;商业40年;绿地50年

规划户数 322户 车 位 数 806个

物业公司 融信世欧 物业类型 住宅

开 发 商 福建开景置业发展有限公司

据悉,融信低密产品“海月系”,目前已经在福州、青岛、苏州、重庆等多地布局。融信海月系低密住区在规划之初,同样坚持自然资源导向原则,优先择址城市的山河湖海、古建地标等区域,占据不可复制的自然或人文资源,使其成为项目恒久的价值标签。

海月江南位于闽江南岸的仓山区江南CBD板块,临近江边村历史文化名村,容积率不到1.4,有望打造成继海月江潮(台江苍霞)后,海月系又一标杆产品。

海月江南景观设计方案公示

9月14日,福州市自然资源与规划局根据相关规定,将海月江南项目建筑景观设计方案进行批前公示,公示时间为2021年9月14日至9月23日。

海月江南项目项目位于福州市仓山区江南CBD地块,江边洲路南侧,雁头路北侧。总用地面积83181㎡(约125亩),规划用地性质为商业商务混合用地、商业居住混合用地、公园绿地,容积率1.4以下。

根据建设单位报送的规划设计方案,本项目总建筑面积约为13.08万方,其中地上建筑面积约9.22万方,主要功能为住宅、公寓式办公、商业、超市、商贸楼、配套用房等;地下建筑面积约为3.86万平方米,主要功能为车库、地下商业、会所、设备用房(最终以规划许可为准)。

地块背景及区位简析

今年2月3日,福建中设天俊集团有限公司以底价6.96亿元竞得宗地2021-05号地块,平均楼面地价7326元/㎡,参考可售楼面价8279元/㎡。

随后,中设天俊、融佳禾(融信)、鑫鹏凯佳三家联合成立福建融佳俊房地产有限公司,负责宗地2021-05号地块(海月江南)的开发。

宗地2021-05号地块位于仓山区江边洲路南侧,雁头路北侧,江南CBD出让地块一。选址面积97760㎡(合146.64亩),出让面积67859㎡(合101.79亩),土地用途为住宅、商业商务、绿地。容积率1.4以下,限高50米。

项目须回购商贸楼建筑面积10900㎡、配套停车位53个、全龄化养老设施建筑面积2000㎡、社区卫生服务中心建筑面积2000㎡等。

该项目位于仓山江南CBD板块,地处闽江南岸,具有一定瞰江效果,地块内将结合历史保留建筑,打造商业街区及景观绿核。地块西侧前横南路(在建)两侧未来规划多幅商务、商住用地,目前片区路网尚在建设中。

周边在售楼盘主要有凯佳江南里(约2.7万/平)、金辉观澜云著SOHO(约2.2万/平)、旭辉江南赋(约2.45万/平)等

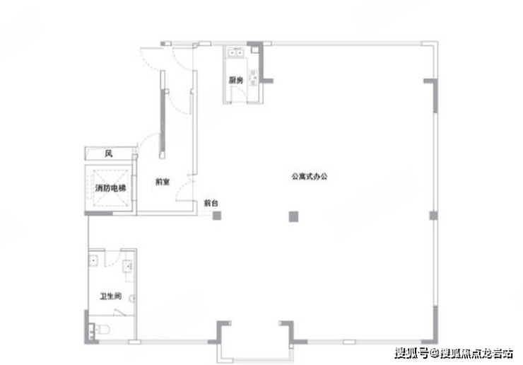
户型鉴赏。

海月江南

售楼处详情介绍:售楼处电话:0591-3817-3457【24小时】地址、户型图、小区图片、区位优势、交通、周边商业配套等楼盘详细资料;

更详细房源信息和最新折扣价格,请拨打售楼处电话:0591-3817-3457一对一专属置业顾问会为您详细介绍楼盘。

欢迎来电咨询楼盘、看房请提前预约,电话预约看房享受专属内部优惠折上折,享有惊喜家电赠送

福州海月江南售楼处电话:0591-3817-3457【营销中心】欢迎您

更多项目优惠邱经理18650383152微信:qiulaoquan

售楼处直销,不会收取任何费用,请提前一小时预约看房,预约享额外售楼处专属内部团购优惠

声明:本文由入驻焦点开放平台的作者撰写,除焦点官方账号外,观点仅代表作者本人,不代表焦点立场。